Coachella, CA
Home MenuService Finder
Search Services
-
Pay Utility Bill
- Pay Utility Bill
- LEARN MORE
-
Special Event Permit
- Special Event Permit
- LEARN MORE
- Pay Utility Bill
- LEARN MORE
Departments » Development Services
Development Projects
Departments » Development Services
Development Projects
(NOTE: click on map icon below and select 'cancel' to access interactive features)
Development Status Reports
See below development status reports that maintains a list of all active development projects in the City of Coachella. The reports include all projects involving a general plan amendment, change of zone, subdivision map, specific plan, architectural review, conditional use permit, variance, or similar entitlement. Once all phases of construction of the project are complete, or if the project expires, it is removed from the development status reports list. Further below are project summaries for active development projects in the City of Coachella. Please contact the Planning Division at planning@coachella.org or 760-398-3102 for questions related to a specific project.
Development Status Report - July 2023
Development Status Report - September 2024
Development Status Report - July 2025
Development Status Report - October 2025
Residential
|
Cases: |
Architectural Review No. 21-15 (related case: Tentative Tract Map 31978) |
| Address: | East of Frederick Street between Avenue 53 and 54 |
| Status: | Under Construction |
| Description: | 111 single-family residences ranging in size from 1,342 sq. ft. to 2,467 sq. ft. and included 1 and 2 story residences within an existing unfinished Tract 31978. |
| Acreage: | Approximately 24 acres |
| Applicant: | Pulte Home Company, LLC 27401 Los Altos, Suite 400 |
| Approval: | Admin Approval on 4/5/22 |
| Project Planner: | Kendra Reif |
|
Cases: |
TTM 39051, CUP 390, EA 25-02 |
| Address: | Southwest corner of Calhoun Street and Avenue 49 (APN: 612-260-010) |
| Status: | Under Review |
| Description: | Subdivide 39.98 acres for a gated residential neighborhood consisting of 255 Single Family Lots with a public park on 1.96 acres |
| Acreage: | 39.98 Acres |
| Applicant: | Pacific Modern Builders LLC |
| Approval: | Under Review |
| Project Planner: | Adrian Moreno, Kendra Reif |
|
Cases: |
GPA 22-04, CZ 22-05, TTM 38429, AR 22-11, EA 22-04 |
| Address: | APN# 779-360-001 |
| Status: | Under Review |
| Description: | Proposed subdivision for 112 single family residences on 19.2 acres on the Westside of Van Buren street between Avenue 51 and Avenue 52 |
| Acreage: | 19.2 acres |
| Applicant: | Joseph Rivani |
| Approval: | Under Review |
| Project Planner: | Kendra Reif |
|
Cases: |
Architectural Review No. 21-09 |
| Address: | SEC of Calhoun Street and 50th Avenue |
| Status: | Under Construction |
| Description: |
1 and 2-story single family residences with attached garages on the 155 vacant lots within Tract 32074 with Spanish, Tuscan and Italianate architectural design.
|
| Acreage: |
37.3 acres |
| Applicant: | D.R. Horton; Attn: Mario Ornelas; 2280 Wardlow Circle #100, Corona, CA 92880; (951) 739-5481 |
| Approval: | Admin Approval 1/5/22 |
| Project Planner: | Kendra Reif |
|
Cases: |
Architectural Review 19-10 |
| Address: | 84-900 Bagdad Avenue (APN 768-210-025 and -026) |
| Status: | Under Construction |
| Description: |
110-unit Apartment Community with 2 and 3 bedroom dwellings (8 freestanding buildings) at 84-900 Bagdad Avenue. The project involves the demolition of 50 multi-family units which will be replaced by the new units. The project will be constructed in 2 phases.
The northerly portion is phase 1 which consists of 4 apartment buildings (75 units) and a community center with splash pad. The southerly portion consists of 4 apartment buildings (35 units). |
| Acreage: | 5.76 acres |
| Applicant: | Community Housing Opportunities Corporation |
| Approval: | Planning Commission approved 2/5/20 |
| Project Planner: | Kendra Reif |
|
Cases: |
Architectural Review 19-08, Change of Zone 17-03 |
| Address: | NE Corner of Cesar Chavez and 6th Street |
| Status: | Construction Complete |
| Description: | 3-story mixed use building with 105 dwelling units and 3,000 sq. ft. of commercial and Transit Hub on 2.61 acres at the Northeast corner of Cesar Chavez Street and 6th Street |
| Acreage: | 2.61 acres |
| Applicant: | Chelsea Investment Corp; 6339 Paseo Del Lago, Carlsbad CA 92011; (619)987-7780 |
| Approval: | AR 19-08 approved by PC 1/15/20; CZ 17-03 approved by CC on 12/13/2017 |
| Project Planner: | Kendra Reif |
|
Cases: |
|
| Address: | West of Van Buren Street, South of Avenue 50, North of Avenue 51 (APN #'s 779-280-002 and 779-320-001) |
| Status: | Under Construction |
| Description: | 204 Single-Family residential lots |
| Acreage: | 39 Acres |
| Applicant: | The Pulte Group |
| Approval: | Council Approved 10/30/23 |
| Project Planner: | Kendra Reif |
|
Cases: |
GPA 22-02, CZ 22-03, TTM 38524, AR 22-10 |
| Address: | Northeast corner of Avenue 49 and Van Buren Street |
| Status: | Under Review |
| Description: | Proposed subdivision of 30.4 acres of partially improved land into 124 single family residential lots at the Northeast corner of Avenue 49 and Van Buren Street and 3 proposed single family models ranging in size from 1,898-2,435 sq. ft. |
| Acreage: | 30.4 acres |
| Applicant: | Southbury Development, LLC |
| Approval: | Under Review |
| Project Planner: | Kendra Reif |
|
Cases: |
Architectural Review No. 23-11 (related case: Tentative Tract Map 30831) |
| Address: | Northwest corner of Avenue 50 and Frederick Street |
| Status: | Under Construction |
| Description: | 20 single-family residences with an existing unfinished tract TTM 30831. The homes include (10) 1-story 1,815 sq. ft. residence, a (10) 2-story 2,121 sq. ft. residence |
| Acreage: | |
| Applicant: | MV A24 LLC/Steve Landis PO Box 9559 |
| Approval: | Admin Approval on 12/12/23 |
| Project Planner: | Adrian Moreno |
|
Cases: |
GPA 22-05, CZ 22-06, TTM 38577, EA 22-06 |
| Address: | (APN# 779-280-002, 779-320-001) |
| Status: | Under Review |
| Description: | Proposed residential development of 204 single family residences on 29 acres West of Van Buren street and South of Avenue 50 |
| Acreage: | 39 acres |
| Applicant: | Pulte Group |
| Approval: | Under Review |
| Project Planner: | Ron Goldman (Consulting Planner) |
|
Cases: |
Change of Zone (CZ) 22-01 Conditional Use Permit (CUP) 351 Architectural Review (AR) 22-04 |
| Address: | Northeast Corner of Cesar Chavez Street and Bagdad Avenue |
| Status: | Planning Commission approved 4/20/22, City Council Approved 5/11/22 |
| Description: | 108 Apartment units and 2 retail units with Building A 3-stories and Building B 4-stories |
| Acreage: | 2.83 acres |
| Applicant: |
Chelsea Investment Corp; Attention Dave Davies 6339 Paseo Del Lago, Carlsbad, CA 92011; (619) 987-7780 |
| Approval: | N/A |
| Project Planner: | Kendra Reif |
|
Cases: |
AR No. 19-06, CZ 19-01 |
| Address: | 84-824 Calle Verde |
| Status: | Approved |
| Description: |
152-unit Apartment Community with one to three bedroom dwellings (27 freestanding buildings) at 84-824 Calle Verde. The developments consist of 1, 2 and 3-bedroom apartment units, including:
|
| Acreage: | 9.4 acres |
| Applicant: | Abode Communities |
| Approval: | Approved Administrative Review 2/20/20 |
| Project Planner: | Kendra Reif |
|
Cases: |
TTM 38145 (related cases - SP 14-01, GPA 14-01, CZ 14-01, EA14-04, TPM 36872) |
| Address: | APN 603-150-005, -007, -009, -010 & -011 |
| Status: | Under Review |
| Description: |
TTM38145 is to subdivide 42.92 acres into 204 single family lots Located east of Tyler Street, north of Avenue 48 and west of Polk street. (APN: 603-150-005 & -007). TTM 38146 is to divide 46.92 acres into 254 single-family lots (APN: 603-150-009, 010 & -011) |
|
Acre age: |
TTM 38145 is 42.92 acres, TTM 38146 is 46.92 acres |
| Applicant: | James Kozak, Strategic Land Partners, LP; 12671 High Bluff Dr, Suite 150, San Diego, CA 92130; (858)699-7440 |
| Approval: | N/A |
| Project Planner: | Kendra Reif |
Commercial/Industrial
|
Cases: |
TPM 37892, AR 24-13 EA 24-02 |
| Address: | 48441 Van Buren Street (APN 612-250-002 and 612-230-005) |
| Status: | Under Review |
| Description: | Commercial project with modern architecture consisting of 6 buildings (Bldg A - Office 7,500 sq. ft, Bldg B - Retail 6,600 sq. ft., Bldg C - Retail 10,800 sq. ft., Bldg D - Retail 6,600 sq. ft., Bldg E - Retail 13,800 sq. ft.) proposed in two phases on approximately 19.56 acres at 48441 Van Buren Street (APN 612-250-002 and 612-230-005). The Tentative Parcel Map would divide the properties into two lots of 9.23 acres and 10.07 acres |
| Acreage: | 19.56 |
| Applicant: | Juan Acosta |
| Approval: | Under Review |
| Project Planner: | Kendra Reif |
|
Cases: |
AR No. 25-02, CUP 389, EA 25-01 |
| Address: | 85901 Avenue 53 |
| Status: | Under Review |
| Description: | Phase 2 (Design Review and Environmental Review) - For the construction of a 15,000 sq. ft. warehouse and a 3,000 sq. ft. R&D facility. Phase 3 (Environmental Review only) for the construction of a 15,000 sq. ft. production facility, a new 15,000 sq. ft. warehouse, two new 900 sq. ft. storage structures, and a 6,000 sq. ft. expansion of an existing storage warehouse |
| Acreage: | 52 |
| Applicant: |
Desert Concepts Construction Inc. 79775 Ave 40 Indio, CA 92203 |
| Approval: | Under Review |
| Project Planner: | Adrian Moreno |
|
Cases: |
Conditional Use Permit 268 |
| Address: | Northwest corner of Avenue 50 and Calhoun Street |
| Status: | Complete |
| Description: | 40,919 sq. ft., 2-story, medical clinic with 294 parking spaces on approx. 4 acres in Tract 37088-1 |
| Acreage: | 4.56 acres |
| Applicant: |
Tower Energy Group Torrance, CA 90504 (310)535-8000 |
| Approval: | Planning Commission Approved 4/17/19 |
| Project Planner: | Gabriel Perez |
| Planner contact: | (760)398-3102 |
|
Cases: |
AR No. 24-10 |
| Address: | APN 603-260-056 |
| Status: | PC Approved 2/5/2025 |
| Description: | Construction of a new one-story 6,900 sq. ft. medical clinic that includes medical offices and an additional suite in the Neighborhood Commercial (C-N) zone. |
| Acreage: | .71 |
| Applicant: |
Alpha Rue, LLC 51544 Cesar Chavez St, Ste 1D Coachella, CA 92236 |
| Approval: | PC Approved 2/5/2025 |
| Project Planner: | Anahi Fernandez |
|
Cases: |
General Plan Amendment 20-01, Change of Zone 20-01, Tentative Tract Map 37921, Conditional Use Permit 324, 325, 326. Architectural Review 20-04 and Environmental Assessment 20-01 |
| Address: | Northwest corner of Airport Boulevard and the 86 Expressway |
| Status: | Under Review |
| Description: | Proposed 628,825 sq. ft. industrial center w/ Cannabis Cultivation, mini-storage, and service station on 42.69 acres in the MS-IP zone at the Northwest corner of Airport Blvd and the 86 Expressway |
| Acreage: | 42.69 acres |
| Applicant: | Empire Airport (Haagen Co.) 12302 Exposition Blvd. Los Angeles CA 90064 |
| Approval: | N/A |
| Project Planner: | Gabriel Perez and Contract Planner Nicole Criste |
| Planner contact: | gperez@coachella.org |
|
Cases: |
CUP 220, CUP 331 and CZ 20-04 |
| Address: | 46-156 Dillon Road |
| Status: | Under Construction |
| Description: | To establish a 7,170 sq. ft. retail cannabis business with a consumption lounge and a takeout restaurant within the existing building located at 46-156 Dillon Road |
| Acreage: | 1.9 acres |
| Applicant: | Coachella Can LLC - Armen Paronyan |
| Approval: | City Council approval of CUP 220 and 331 on April 28, 2021. Ordinance No. 1178 approved August 25, 2021 |
| Project Planner: | Gabriel Perez |
| Planner contact: | (760)398-3102 |
|
Cases: |
CUP 254 (Modification), AR 24-02 Coachella Gateway |
| Address: | 48151 Grapefruit Blvd. Southwest corner of Grapefruit Boulevard and Avenue 48 |
| Status: | Approved |
| Description: | A 4,605 SF multi-tenant commercial building that will include a drive-thru restaurant and two other tenants |
| Acreage: | 4.85acres |
| Applicant: |
Chandi & Karen LLC 42270 Spectrum Street Indio, CA 92203 |
| Approval: | Planning Commission Approved 7/17/24 |
| Project Planner: | Adrian Moreno |
|
Cases: |
CUP 334, CUP 293 (Mod) |
| Address: | 84-801 Avenue 48 |
| Status: | Open |
| Description: | 1,100 sq. ft. retail cannabis business in an existing industrial building |
| Acreage: | 1.6 acres |
| Applicant: | Diana Palacios |
| Approval: | PC Approved 3/17/21 |
| Project Planner: | Gabriel Perez |
| Planner contact: | (760)398-3102 |
|
Cases: |
CUP 308, AR 18-08, AR 22-08, EA 18-03 |
| Address: | 44-790 Dillon Rd. |
| Status: | Under Construction |
| Description: | To develop a 78.3-acre RV Resort with 46 long-term rental spaces and 390 short term rental spaces |
| Acreage: | 78.3 acres |
| Applicant: | Jim Komick Red Moon Dev. & Construction, 4320 Priceless View Dr. Gold Canyon AZ 85118 |
| Approval: | PC Approved 3/6/19 |
| Project Planner: | Gabriel Perez |
| Planner contact: | (760)398-3102 |
|
Cases: |
CUP 337 CZ 21-01 VAR 21-01 |
| Address: | 86-705 Avenue 54 Ste H |
| Status: | Open |
| Description: | 3,800 sq. ft. retail cannabis microbusiness in the MS-IP zone |
| Acreage: | N/A |
| Applicant: | Adriana Gonzalez |
| Approval: | PC Approved 4/7/21, CC Approved CUP 337 and Variance 21-01 on 8/25/21 Change of Zone adopted 9/8/21 |
| Project Planner: | Gabriel Perez |
| Planner contact: | (760)398-3102 |
|
Cases: |
TTM 38943, AR NO. 24-05, EA 24-01 |
| Address: | East of Cesar Chavez Street and South of Avenue 48 (APN: 603-290-005) |
| Status: | Under Review |
| Description: |
Luxury storage facility on 11 acres for classic cars, boats, RV's and other luxury vehicles including a Tentative Tract Map for Condo purposes. The project consists of:
|
| Acreage: | 11 Acres |
| Applicant: | Steve Myers - Coachella Vault LLC |
| Approval: | Under Review |
| Project Planner: | Kendra Reif |
|
Cases: |
AR No. 16-03 (Modification), CUP 266, TTM 37040, EA 16-01 |
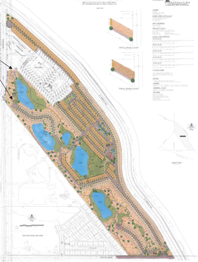
| Address: | Northeast Corner of Vista Del Norte and Tyler Street: |
| Status: | Approved |
| Description: | The project is for a RV Subdivision/Resort that includes 188 lots for Recreational Vehicles, 100 unit two bedroom townhomes, and an 11-story 200-room hotel and associated facilities. The project includes an 8-story parking structure and a retail plaza that includes 4 retail buildings. |
| Acreage: | 48 acres |
| Applicant: |
Abraham Gottlieb 8721 W. Sunset Blvd. P-8 Los Angeles, CA 90069 |
| Approval: | Original Approval - 9/26/2018 Modification PC Approved - 2/29/24 |
| Project Planner: | Adrian Moreno |
|
Cases: |
CUP 346, 347, AR 21-12 (related to CUP 321, 322, AR 20-03 and TPM 37940) |
| Address: | Northeast corner of 1st Street and Cesar Chavez Street |
| Status: | Under Construction |
| Description: | New 20,422 sq. ft. Aldi supermarket, 2,600 sq. ft. Panda Express and 2,050 sq. ft. Starbucks on 8.25 acres at the NEC of 1st Street and Cesar Chavez Street |
| Acreage: | 8.25 acres |
| Applicant: | Mr. Francis Chu Coachella Retail Realty, LP Newport Beach, CA 92660 |
| Approval: | City Council Approved 1/26/2022 |
| Project Planner: | Gabriel Perez |
| Planner contact: | gperez@coachella.org |
|
Cases: |
AR 17-07 Development Agreement |
| Address: | SE Corner of Avenue 48 and Van Buren Street |
| Status: | Construction Stalled |
| Description: |
AR 17-07 approved a 76-unit Bungalow-Style Hotel with 160,656 sq. ft. on 24.43 acres in the CG zone. The Development Agreement covers the entirety of the proposed project for a mixed use development consisting of:
|
| Acreage: | 24.3 acres |
| Applicant: |
Glenroy Coachella, LLC |
| Approval: | PC Approved 6/7/17, CC Approved (DA) 10/11/17 (Ord 1110) |
| Project Planner: | Gabriel Perez |
| Planner contact: | (760)398-3102 |
|
Cases: |
CUP 299, CUP 300, CZ 18-03 |
| Address: | 1694 6th Street |
| Status: | Under Construction |
| Description: | 1,839 sq. ft. retail cannabis dispensary and 1,432 sq. ft. bar/pub |
| Acreage: | .11 acres |
| Applicant: | Pedro Ordonez |
| Approval: | PC Approved 3/20/19 CC Approved 5/8/19 |
| Project Planner: | Gabriel Perez |
| Planner contact: | (760)398-3102 |
|
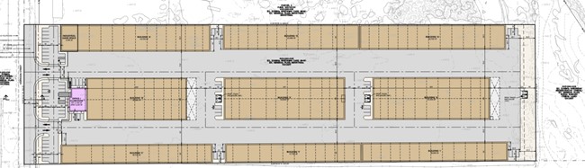
Cases: |
TPM 38218, AR 21-07, CUP 354 |
| Address: | 53-457 and 53-459 Enterprise Way |
| Status: | Approved |
| Description: | Construction of two 25,750 sq. ft. industrial building to create up to 32 warehouse condos and 8 office condos of which some will accommodate RV storage |
| Acreage: | 3.29 acres |
| Applicant: | JJWR, LLC 440 Santa Lucia Drive, Hemet, CA 92543 |
| Approval: | PC Approved 5/18/22, CC Approved 6/8/22 |
| Project Planner: | Gabriel Perez |
| Planner contact: | (760)398-3102 |
|
C ases: |
AR 22-05 |
| Address: | 1562 6th Street |
| Status: | Under Review |
| Description: | Mixed-use with 2,302 sq. ft. retail space on the first floor and 1,583 sq. ft. on the 2nd floor |
| Acreage: | N/A |
| Applicant: |
William A. Aguirre, PE |
| Approval: | Under Review |
| Project Planner: | Kendra Reif |
|
Cases: |
CUP No. 374, AR No. 23-16 |
| Address: | 45800 Dillon Road |
| Status: | PC Approved 7/3/2024 |
| Description: | Construction of a 1,750 sq. ft. retail cannabis business within an existing building located in the R-C (Regional Commercial) zone. |
| Acreage: | 1.27 |
| Applicant: |
Greg Klibanov 10715 Camarillo St, #103 North Hollywood, CA 91602 |
| Approval: | PC Approved 7/3/2024 |
| Project Planner: | Anahi Fernandez |
|
Cases: |
AR 24-07, CUP 381 |
| Address: | NEC of Cesar Chavez St and Valley Rd |
| Status: | PC Approved 7/3/24 |
| Description: | 4,130 sq. ft. commercial bank |
| Acreage: | 1.97 acres |
| Applicant: | Patrick Carey |
| Approval: | Approved |
| Project Planner: | Kendra Reif |
|
Cases: |
CUP 369, AR 23-06, EA 23-05 Sunridge Self Storage |
| Address: | Located at the end of Tyler Lane, north of Avenue 54, west of Grapefruit Boulevard, and east of Tyler St, Assessor's Parcel No. 763-141-018 |
| Status: | Approved |
| Description: | Expansion of the existing RV and Self-Storage facility at HWY 111. The project includes 62,979 square feet of self-storage units, RV storage spaces, covered parking canopies, and a 900 square foot leasing office |
| Acreage: | 4.85 |
| Applicant: |
James Delhamer 38375 Turnberry Court Murrieta, CA 92562 |
| Approval: | PC Approved 11/15/23 |
| Project Planner: | Adrian Moreno |
Cannabis
|
Cases: |
CUP 220, CUP 331 and CZ 20-04 |
| Address: | 46-156 Dillon Road |
| Status: | Under Construction |
| Description: | To establish a 7,170 sq. ft. retail cannabis business with a consumption lounge and a takeout restaurant within the existing building located at 46-156 Dillon Road |
| Acreage: | 1.9 acres |
| Applicant: | Coachella Can LLC - Armen Paronyan |
| Approval: | City Council approval of CUP 220 and 331 on April 28, 2021. Ordinance No. 1178 approved August 25, 2021 |
| Project Planner: | Kendra Reif |
|
Cases: |
CUP 334, CUP 293 (Mod) |
| Address: | 84-801 Avenue 48 |
| Status: | Open |
| Description: | 1,100 sq. ft. retail cannabis business in an existing industrial building |
| Acreage: | 1.6 acres |
| Applicant: | Diana Palacios |
| Approval: | PC Approved 3/17/21 |
| Project Planner: | Kendra Reif |
|
Cases: |
CUP 337 CZ 21-01 VAR 21-01 |
| Address: | 86-705 Avenue 54 Ste H |
| Status: | Open |
| Description: | 3,800 sq. ft. retail cannabis microbusiness in the MS-IP zone |
| Acreage: | N/A |
| Applicant: | Adriana Gonzalez |
| Approval: | PC Approved 4/7/21, CC Approved CUP 337 and Variance 21-01 on 8/25/21 Change of Zone adopted 9/8/21 |
| Project Planner: | Gabriel Perez |
|
Cases: |
CUP 336, CZ 20-08 |
| Address: | 85-591 Grapefruit Blvd |
| Status: | Approved |
| Description: | A 1500 sq. ft. retail cannabis dispensary in an existing building on .30 acres of land in the CG-RC zone |
| Acreage: | .30 acres |
| Applicant: | Armando Lerma |
| Approval: | PC Approved 5/26/21, CC Approved 6/9/21 - CZ Time Extension for CUP Approved by PC 6/15/22 |
| Project Planner: | Kendra Reif |
Specific Plans
|
Cases: |
SP 22-01, GPA 22-03, CZ 22-04, EA 22-05, DA 22-02 |
| Address: | Northeast portion of the City of Coachella, North of the I-10 Freeway and East of the All American Canal |
| Status: | Under Review |
| Description: |
KPC Coachella Specific Plan entails construction of approx. 9,536 dwelling units (DUs) of a variety of residential types; approx. 305 acres of mixed-use areas: Approx. 71 acres of proposed school facilities for a total of 2,807 acres. A project page with updates can be found here: https://www.coachella.org/department-services/kpc |
| Acreage: | 2,807 acres |
| Applicant: | KPC Development Company, LLC |
| Approval: | Under Review |
| Project Planner: | Ron Goldman (Consulting Planner), Kendra Reif |
|
Cases: |
|
| Address: | Northeast portion of the City of Coachella, North of the I-10 Freeway and East of the All American Canal |
| Status: | Council Approved 11/13/13 |
| Description: | The La Entrada Specific Plan is a 2,200 acre Master Planned Community located in Coachella, California. La Entrada is an approved Specific Plan and EIR that includes 7,800 master planned residential units in several distinct villages linked by over 550 acres of open space. Plans also include over 1.5 million square feet of retail and mixed use space, along with 175 acres of sports/entertainment uses at the planned freeway interchange located at Avenue 50 and Interstate 10. The Gateway Village is home to over 1.5 million square feet of retail and mixed use along with 175 acres of sports park and entertainment uses. |
| Acreage: | 2,200 Acres |
| Applicant: | |
| Approval: | Approved |
| Project Planner: | Gabriel Perez |
Public
|
Cases: |
AR 21-13 |
| Address: | Southeast corner of Cesar Chavez Street and 4th Street |
| Status: | Approved |
| Description: | Transit center for Line 111, Line 91, Line 92, Line 95 and will include a 540 sq. ft. breakroom/office building, three bus shelters, landscape improvements |
| Acreage: | .86 acres |
| Applicant: | Sunline Transit Agency |
| Approval: | PC Approved 7/7/22 |
| Project Planner: | Kendra Reif |
|
Cases: |
AR 24-08 |
| Address: | 1538 7th Street. Southeast corner of Orchard Street and 7th Street |
| Status: | Under Review |
| Description: | The construction of a 10,195 square foot library annex building. The building plans to provide study hall space and a food lab area. The west portion of the building is planning for community room space with a state, seating and bookshelves. The east end of the building is planned to be dedicated to maker space, digital maker space, and a media lab that may include a ceramic studio and recording room. |
| Acreage: | N/A |
| Applicant: | City of Coachella |
| Approval: | Under Review |
| Project Planner: | Adrian Moreno |
